【2023年最新】ハワイ新コンドミニアム「Launiu(ラウニウ)」の最新情報 ※随時更新

2023.06.26
再開発で建設ラッシュが続いているホノルルですが、新築のコンドミニアムは、物件の建設開始前から先行販売が始まります。人気の物件であれば、先行販売の初期で完売してしまうなど、購入を検討されている場合はいち早く情報を入手・購入申込をするかが鍵となってきます。
アメリカ大手デベロッパーであるハワードヒューズが手がけるカカアコの再開発プロジェクト「ワードビレッジ」にて、ハワイにおける最新設備を備えたラグジュアリーコンドミニアムの購入を検討されている方へ、先行販売開始待ちとなっている注目物件をご紹介します。
Launiu(ラウニウ)とは?
ホノルル、ショッピングセンターで有名なアラモアナ地区と省庁街であるダウンタウン地区の間、カカアコ地区で進んでいる大規模開発プロジェクト「Ward Village(ワードビレッジ)」において、11棟目に建設が予定されている高級コンドミニアムの名前が「Launiu(ラウニウ)」です。

ワードビレッジでは現在6棟目までが竣工、7〜10棟目までが建設許可が降りて建設が進んでおり、先行販売中です。ただし、これらの物件はほぼ完売状態のため、コンドミニアムの中でも上層階や景観の良い部屋は残っていません。
そのため、次の先行販売が開始される予定のラウニウに注目が集まっています。
カカアコについて知りたい方はこちら↓
【2023年版】カカアコのコンドミニアム購入徹底ガイド!おすすめ8選と運用方法を解説
ラウニウの現在公開されている情報(2023年6月現在)
現在、正式にワードビレッジからラウニウに関する詳細情報は公開されていません。ただし、建設を計画している場合、ハワイ州に建設計画プランの提出が必須であり、建設許可を得なければなりません。
その建設計画は公開義務があるため、ラウニウに関する一部の情報を知ることが出来ます。
ここからは、2023年6月現在公開されている情報についてまとめています。
なお、今後詳細情報の解禁が予定されているので、随時更新していきます。
1. 立地

ラウニウは、55エーカーのプロジェクト面積を誇るワードビレッジ内で、海側左端に位置する土地に建設予定です。上記地図の左下、水色の点線で囲まれている場所で、現在先行販売中の10棟目Kalae(カラエ)とWard通りを挟んで向かい側に位置します。
毎週土曜日に在住者と観光客に人気のカカアコファーマーズマーケットですが、かつてアラモアナ通りを挟んで2ヶ所で開催されていた時の、山側のエリアにラウニウが建設されます。なお、カカアコファーマーズマーケットは現在ヨットハーバー側に全て移動して開催されています。
ワードビレッジはアラモアナ通り沿いを1列目、Auahi(アウアヒ)通り沿いを2列目、Halekauwela(ハレカウウェラ)通りを境に3列目と位置付け、海側からラグジュアリー度が高くなり、3段階の設定となっています。
今回のラウニウは1列目のため、ワードビレッジの中でも1番ラグジュアリー度の高い列での建設となっており、期待されています。
2. 規模
資料によりますと、コンドミニアムの規模感は下記となります。
- 敷地面積:92,136スクエアフィート(8,560㎡)
- 総床面積:667,825スクエアフィート(62,043㎡)
- アメニティスペース:78,310スクエアフィート(7,275㎡)
- 1階商業スペース:21,726スクエアフィート(2,018㎡)
高さは400フィート(122m)で、40階建ての予定です。
1階から7階までがポディウムで、1階に商業スペース、2階以降が住居スペースであるお部屋と駐車場、8階以降が住居スペースのタワーとなっています。

3. アメニティ
アメニティは1階と7階に別れており、1階にはオープンスペースやドッグラン、7階には大人用・子供用の2つのプール、カバナ、屋内と屋外が繋がっているフィットネスエリア、スタジオ、スパ、パーティルーム、BBQエリアが備わっていることがわかっています。
<1階図面>

<7階図面>

建設計画の図面からの読み解きですので、今後詳細情報が分かり次第更新します。
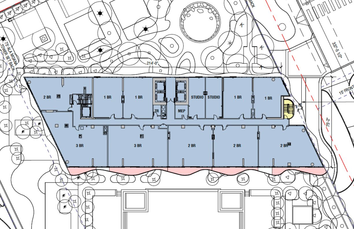
4. 部屋
<ポディウム部分>
1階には商業スペースとエントランス、駐車場となっており、2階から6階までは部屋と駐車場で、7階がアメニティフロアになっています。こちらのポディウムはスタジオ(ワンルーム)タイプが中心となっています。

<タワー部分>
8階から40階は1フロア12部屋で構成され、スタジオ(ワンルーム)タイプ2部屋、1ベッドルームタイプ4部屋、2ベッドルームタイプ4部屋、3ベッドルームタイプ2部屋とされています。
ラウニウ全体で486部屋となる予定です。


最新情報をいち早く入手しましょう
現在、先行販売待ちとなっているワードビレッジのコンドミニアムは、このラウニウだけです。
ワードビレッジは2030年に全てが完成予定とされており、マスタープラン上はコンドミニアムは14棟建設予定です。今回のラウニウが11棟目なので、残りはラウニウを入れてわずか4棟を残すのみです。
ワードビレッジの開発は着々と進んでおり、商業スペースにもテナントの入居が続いており、ますます注目を集めています。

もしワードビレッジに興味がある場合、残り少ないチャンスを逃さないためにも、最新の情報を入手することが大切です。
弊社ではLINEにて最新情報やブログ更新情報を通知していますので、是非登録ください。
もちろん、メールでのお問い合わせや無料ご相談も承っております。
カテゴリで絞り込む
新着記事
-
2024.03.11
-
2024.03.05
-
2023.10.16
-
2023.09.11


